Barrierefreiheit umsetzten

- Barrierefrei-Konzept-

 

 

Im Zuge der Entwurfsplanung erstellen wir das Barrierfrei-Konzept für ihre Planung.

Dieses Konzept dient als Nachweis der Umsetzung der baulichen Barrierefreiheit im Baugenehmigungsverfahren oder auch bei den entsprechenden Zertifizierungen nach DGNB oder QNG.

Es stellt alle notwendigen, baulichen Anforderungen an die barrierefreie Auffindbarkeit, Erkennbarkeit, Zugänglichkeit und Nutzbarkeit dar.

 

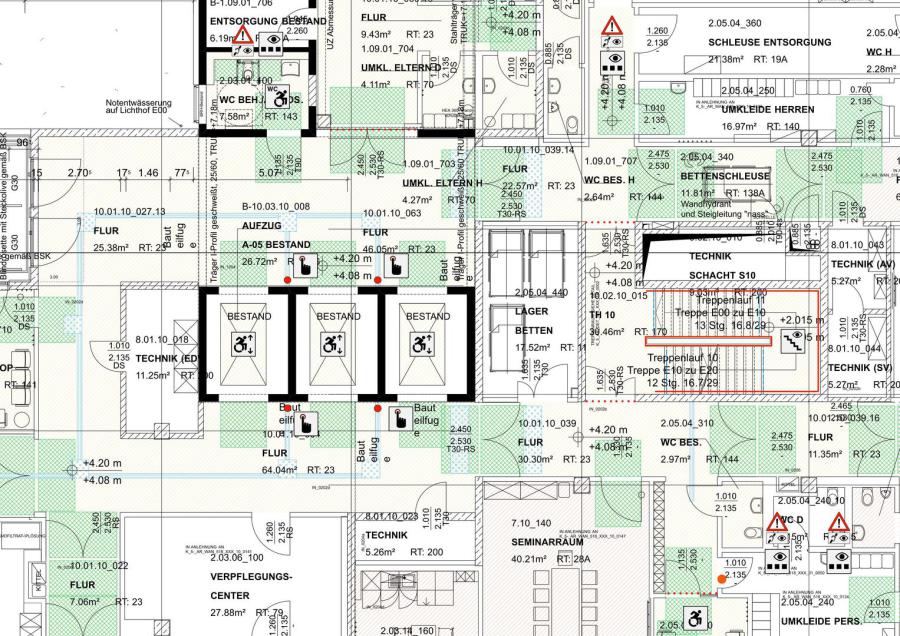
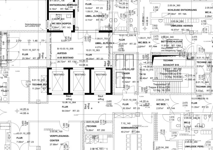
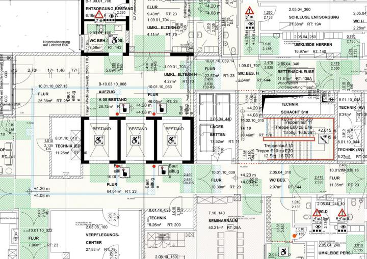
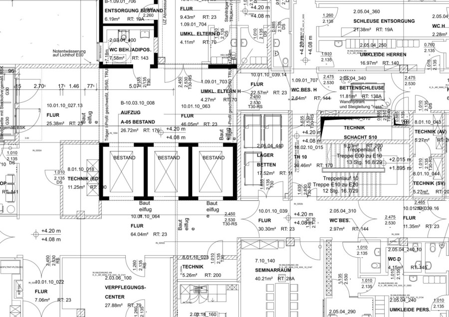
Im Plan-Teil zum Barrierfrei-Konzept werden die geforderte Zugänglichkeit und die Nutzbarkeit garfisch dargestellt. Dies wird mit Hilfe von Piktogrammen nebst einer Legende erreicht, die damit übersichtlich, die vom Gesetzgeber geforderten Anforderungen zur baulichen Barrierefreiheit darstellen.

Alle weiteren Maßnahmen zur Umsetzung der baulichen Barrierefreiheit werden in einem  dazugehörigen Textteil erfasst. 

- Anforderungen an die bauliche Barrierefreiheit darstellen und prüfen - 

 

 

Immer mehr Bundesländer fordern die Darstellung der notwendigen Maßnahmen zur 

baulichen Barrierefreiheit durch Barrierfrei-Konzepte. Gleichzeitig steigt die Zahl der Bauherren, die ihr Gebäude durch entsprechende Zertifizierungssysteme prüfen lassen.

 

 

Jede Architektur, und jeder Außenraum ist anders.

Daher erarbeiten wir eine detaillierte Bedarfsplanung mit der wir Ihre speziellen

Anforderungen Punktgenau festlegen können. So ist den Projektbeteiligten bereits

zu Beginn deutlich, welche Maßnahmen umzusetzten sind und unnötige Kosten werden

vermieden.

Bestandsanalyse -

 

Die Bestandssanalyse zur baulichen Barrierefreiheit ermöglicht Ihnen den Überblick des aktuellen Ist-Zustandes Ihres öffentlich zugänglichen oder privaten Gebäudes.

Im Rahmens dieser Analyse wird eine Erhebung durchgeführt, die mögliche Defizite feststellt und darstellt. Die so gewonnenen Informationen nutzen wir für eine entsprechende Handlungsempfehlung zur Umsetzung der baulichen Barrierefreiheit.

 

Projekte 

 - Erstellen eines Barrierefrei-Konzeptes -

 

    Für die Klinikerweiterung des UKSH Campus Kiel 

- Erstellen eines Barrierefrei Konzeptes -

 

  Für die Klinikerweiterung des UKSH Campus Lübeck-

 

 - Erstellen eines Barrierefrei-Konzeptes -

 

    Für einen Neubau der HNO / Augenklinik UKSH Campus Kiel

 - Erstellen eines Barrierefrei-Konzeptes -

 

    Für einen Neubau des Zentrallabors UKSH Campus Kiel

 - Erstellen eines Barrierefrei-Konzeptes -

 

    Für einen Neubau eines Verwaltungsgebäude in Elmshorn

- Erstellen eines Barrierefrei Konzeptes -

 

  Für ein Freizeitzentrum mit Eigentumswohnungen an der Ostseeküste

 

- Bestandaufnahme zur Barrierefreiheit -

 

 Gesamtmaßnahme Bundespräsidialamt in Berlin  

 Durchführung der Bestandsaufnahme zur Barrierefreiheit für das Schloss

 Bellevue sowie für das Verwaltungsgebäudes und die vorhandenen     

 Außenanlagen als gemeinsames Projekt der pgb burkhardt jestrimsky,

 Planungsgesellschaft  für Barrierefreiheit (burkhardt usability architects +

 Architekturbüro AMJ )

Bestandaufnahme zur Barrierefreiheit -

 

 Bundesministerium des Inneren (BMI)   

 Durchführung der Bestandsaufnahme zur Barrierefreiheit als 

 gemeinsames Projekt der pgb burkhardt jestrimsky, Planungsgesellschaft

 für Barrierefreiheit (burkhardt usability architects + Architekturbüro AMJ )

 

Bestandaufnahme zur Barrierefreiheit -
 

 Bundesministerium für Arbeit uns Soziales (BMAS)   

 Durchführung der Bestandsaufnahme zur Barrierefreiheit als 

 gemeinsames Projekt der pgb burkhardt jestrimsky, Planungsgesellschaft

 für Barrierefreiheit (burkhardt usability architects + Architekturbüro AMJ )

 

Bestandaufnahme zur Barrierefreiheit -

 

 AUDI Werk Neckarsulm Gebäude B09 und S05

 Durchführung der Bestandsaufnahme zur Barrierefreiheit als 

 gemeinsames Projekt der pgb burkhardt jestrimsky, Planungsgesellschaft

 für Barrierefreiheit (burkhardt usability architects + Architekturbüro AMJ )

 

Bestandaufnahme zur Barrierefreiheit -

 

 FB Erziehungswissenschaften sowie für das Fitness- und 

 Gesundheitszentrum

 Durchführung der Bestandsaufnahme zur Barrierefreiheitarrierefrei für die

 Universität Göttingen 

Bestandaufnahme zur Barrierefreiheit -

 

 Erarbeiten eines Defizitkatasters für den Neubau der Kreisberufsschule 

 Pinneberg

Druckversion | Sitemap
© Architekturbüro AMJ Dipl-Ing. Architekt Marc Jestrimsky